
Certified Aging-in-Place Specialists
in Austin, TX
Age in Place in Style brings together two of Austin’s most respected names in residential construction and interior design. Texas Construction Company contributes nearly three decades of award-winning craftsmanship. Amity Worrel & Co. brings a deeply personal, client-centered design approach recognized in national publications and beloved by Austin homeowners. Together — as Certified Aging-in-Place Specialists — we guide every project from initial assessment through design, construction, and ongoing care, with transparency and an unwavering commitment to getting the details right.
Texas Construction Company
From there, our team collaborates to build a clear plan:
Amity Worrel & Co. leads design discovery and translates your needs into a thoughtful, cohesive plan that respects the style of your home.
Texas Construction Company evaluates feasibility, construction approach, and sequencing so the plan is practical, durable, and built to last.
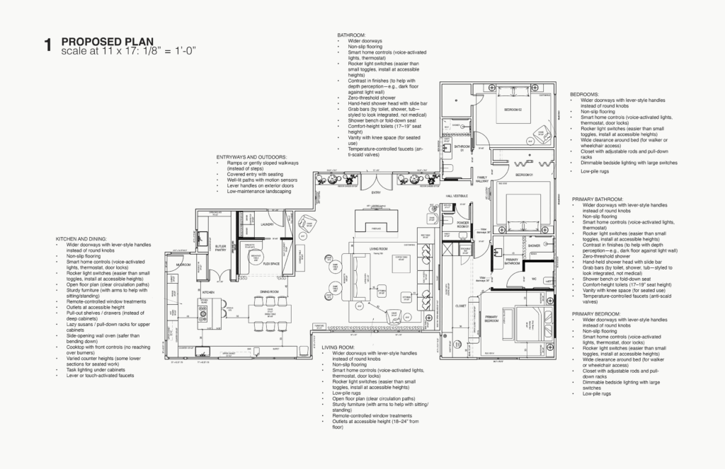
Together, we look at circulation, lighting, thresholds, bathrooms, kitchen flow, entries, and common trip hazards. You’ll leave this phase with a prioritized scope and a confident path forward—whether you’re updating a couple bathrooms or planning a whole-home renovation.
